Magnone.com.uy

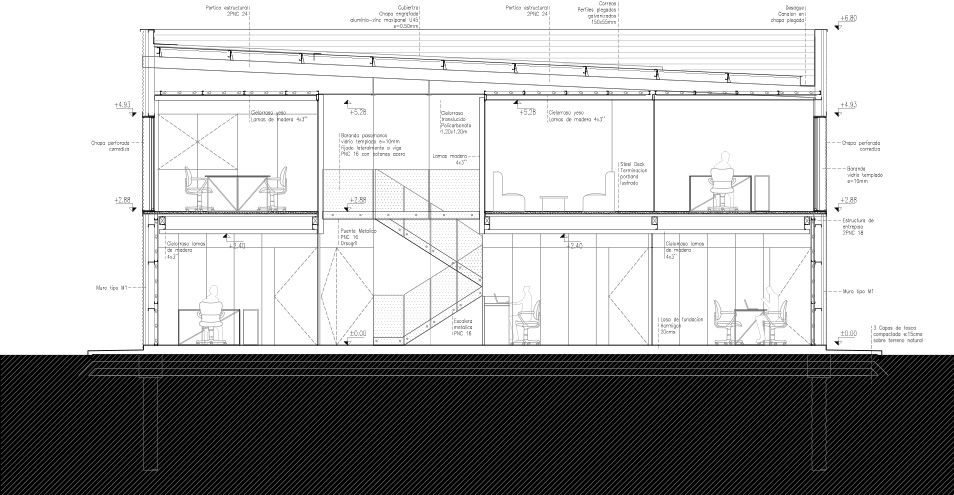
Oficinas Fatro Fedagro
Ruta 8
1100m2
En construccion
Equipo de proyecto: Arq. Fabrizio Devoto,
Mateo Vidal, Julia Silva, Nicolas Diaz, 
Arq. Emilio Magnone

Magnone Arquitectos
info@magnone.com.uy

Built with Berta.me